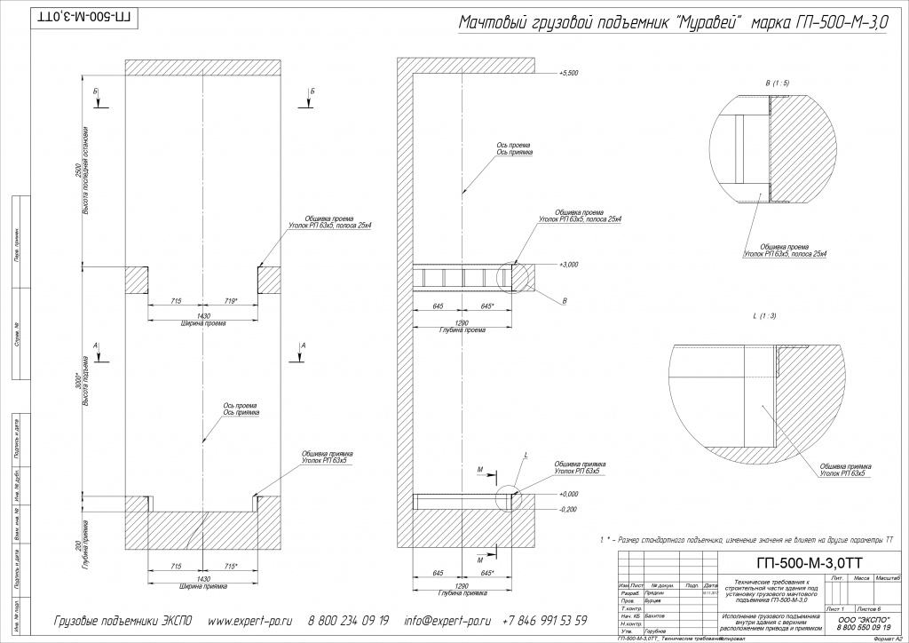
Технические характеристики
Мачтовый грузовой подъёмник «МУРАВЕЙ» от ООО «СИМСтрейд» – надежное оборудование для складов и производств в Беларуси, с фокусом на простоту и кастомизацию. Стандартная модель г/п 500 кг, но мы предлагаем адаптацию под заказ до 500 кг, включая высоту и платформу.
Основные параметры
- Расположение: Снаружи/Внутри – универсально для любых объектов.
- Грузоподъемность: 500 кг (стандарт), до 500 кг под заказ – гибкая настройка для грузов до одного евро поддона.
- Количество остановок: 2 – простая конфигурация для малого бизнеса.
- Масса подъемника: 500 кг – легкость монтажа.
- Высота подъема платформы: 3000 мм – эффективно для 2 этажей.
- Высота последней остановки: 2500 мм – с приямком 200 мм.
- Кнопочный пост управления: 1 ед., напряжение цепи 24 В – безопасное управление.
- Тип платформы: Проходная / Не проходная, настил металлический, полезные размеры 1300х1000 мм (без ограждения), вес 150 кг, окраска красный.
- Габариты устройства: Ширина 1430 мм, глубина 1290 мм, высота 5180 мм; мачта окраска синий.
- Механизм подъема: Электроталь г/п 1200 кг, мощность 1,8 кВт, напряжение 220 В, скорость 0,13 м/с, полиспаст 2/1.
Эти характеристики обеспечивают соответствие стандартам безопасности. Хотите мачтовый подъёмник «МУРАВЕЙ» с кастомной грузоподъемностью до 500 кг? Звоните +375 29 325 30 00 или пишите на info@simslift.by – изготовим быстро с гарантией и бесплатной доставкой по Минску!
Описание
Мачтовый грузовой подъёмник «МУРАВЕЙ» (ГП-500-М-3,0) от ООО «СИМСтрейд» – простое и надежное решение для перемещения грузов до 500 кг на складах, производствах и коммерческих объектах в Минске и по всей Беларуси. Конструкция подъёмника максимально упрощена, но прочна: платформа рассчитана на один евро поддон, подходит для установки внутри или снаружи помещений. Грузоподъемность стандартно 500 кг, но под заказ мы адаптируем до 500 кг, настраивая высоту подъема (3000 мм, 2 остановки), габариты (ширина 1430 мм, глубина 1290 мм, высота 5180 мм) и тип платформы (проходная/непроходная с металлическим настилом).
Управление удобное: кнопочный пост (1 ед., 24 В), привод – электроталь 1,8 кВт (220 В, 0,13 м/с). Мачта окрашена в синий, платформа – красный, с приямком 200 мм для легкого монтажа. Подъемник идеален для задач, где нужна компактность и эффективность без лишних затрат. В наличии или изготавливается под заказ за 18 дней.
Готовы к покупке мачтового грузового подъёмника «МУРАВЕЙ» под вашу грузоподъемность? Закажите консультацию уже сегодня! Свяжитесь по телефону +375 29 325 30 00, email info@simslift.by или через форму на сайте – организуем доставку по Беларуси (бесплатно по Минску), оплату картой для физлиц или безналом для юрлиц, и самовывоз из склада в Минском районе.




