Воспользуйтесь акцией на подъемную платформу для вертикального перемещения в Минске! Скидка 30% на надежное оборудование для перемещения стоя или на коляске. Платформа с противоскользящим покрытием, откидной конструкцией и универсальным монтажом. В наличии на складе!


Описание платформы
Наша подъемная платформа – это надежное и функциональное решение, созданное для обеспечения удобства и безопасности. Основные характеристики:
Универсальность: подходит для перемещения стоя или на коляске.
Безопасность: оснащена противоскатным порогом и пандусом, а также противоскользящим покрытием из перфорированного металла.
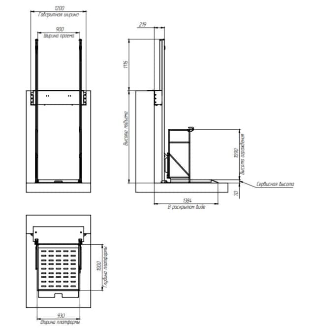
Компактность: откидная конструкция платформы и складные рамные ограждения (створки) позволяют экономить пространство при хранении.
Надежность: привод расположен внутри несущей рамы, а система тросов эффективно передает тяговое усилие. Концевики точной остановки с регулировкой обеспечивают плавную и точную работу.
Универсальный монтаж: платформа легко крепится к металлическим, деревянным или бетонным конструкциям.
Долговечность: порошковая окраска защищает от коррозии и придает эстетичный вид.
Комплектация
Подъемная платформа (в разобранном виде для удобной транспортировки).
Комплект электрооборудования.
Комплект для монтажа.
Паспорт изделия.
Монтажные чертежи.
Инструкция по установке.
Технические характеристики
Характеристика | Значение |
---|---|
Грузоподъемность, кг | 300 |
Высота подъема, м | 0,5-4,0 |
Скорость подъема, м/мин | 5 |
Размер платформы (ШхГ), м | 0,93х1,0 |
Мощность привода, кВт | 1,1 |
Напряжение питания, В | 220 |
Масса, кг | 150 |
Степень защиты | IP53 |
Габаритные размеры

Условия акции
Товар в наличии на складе в Минске.
Скидка 30% на платформу для вертикального перемещения. Стоимость платформы 8900 белорусских рублей с НДС 20%
Спешите! Количество товара ограничено, акция действует до окончания складских запасов.
Почему стоит выбрать нашу платформу?
Эта подъемная платформа - идеальное сочетание функциональности, безопасности и компактности. Она подходит для установки в жилых домах, общественных зданиях и коммерческих помещениях, обеспечивая доступность и комфорт для всех пользователей. Порошковое покрытие и качественные материалы гарантируют долгий срок службы, а простота монтажа экономит ваше время и ресурсы.
Как заказать?
Свяжитесь с нами прямо сейчас через сайт simslift.by или по телефону, чтобы оформить заказ и воспользоваться уникальной скидкой 30%! Не упустите шанс приобрести надежное оборудование по выгодной цене!